Woonoppervlakte
Circa 118 m²
Perceeloppervlakte
Circa 143 m²
Bouwjaar
Gebouwd in 1958
Aantal kamers
5 kamers (4 slaapkamers)

Prunuslaan 11

4702 AL, Roosendaal (Noord-Brabant)

Stap binnen in het gezellige leven aan de Prunuslaan 11 in Roosendaal, een plek waar comfort, ruimte en sfeer samenkomen. Gelegen in een rustige, kindvriendelijke wijk van Roosendaal vind je deze charmante hoekwoning aan de Prunuslaan 11. Deze woning verrast je met een gezellige en ruime woonkamer, een heerlijke eetkamer, een multifunctionele extra ruimte én een grote keuken met karakter. De kleurrijke details in de hal én keuken geven het huis een speelse en warme sfeer. De zolderverdieping biedt bovendien nog een extra slaapkamer en veel praktische ruimte. En vergeet die fijne tuin met berging niet, klaar voor eindeloos buiten genieten! Met in totaal 4 slaapkamers is er plek genoeg voor het hele gezin, een hobbykamer of thuiskantoor. Licht, ruimte en mogelijkheden, je hebt het hier allemaal.
Zie jij jezelf hier al wonen? Plan snel die bezichtiging in en laat je verrassen door de sfeer en ruimte van deze leuke hoekwoning!

Entree
Via de keurig aangelegde voortuin kom je binnen in een hal die meteen warmte en gezelligheid uitstraalt. De kleurrijke tegelvloer en het aparte toilet geven de entree karakter en de trap naar boven leidt je naar de eerste verdieping. Hier voel je je direct thuis!

Wonen & Koken
De woonkamer is heerlijk ruim en vol sfeer, met veel lichtinval en een mooie schouw als eyecatcher. Aansluitend vind je de eetkamer, waar je makkelijk een grote tafel kwijt kunt voor lange diners met vrienden en familie. Vanuit hier loop je door naar een extra ruimte die je helemaal naar eigen wens kunt gebruiken, als thuiskantoor, speelkamer of creatieve studio. De keuken is langwerpig, modern en voorzien van inbouwapparatuur, een inductiekookplaat én plek voor een grote koelkast. De houten kastjes met wit blad en de terugkerende groene tegels zorgen voor een sfeervol geheel. Vanuit de keuken heb je ook direct toegang tot de achtertuin.

Slapen, Dromen & Douchen
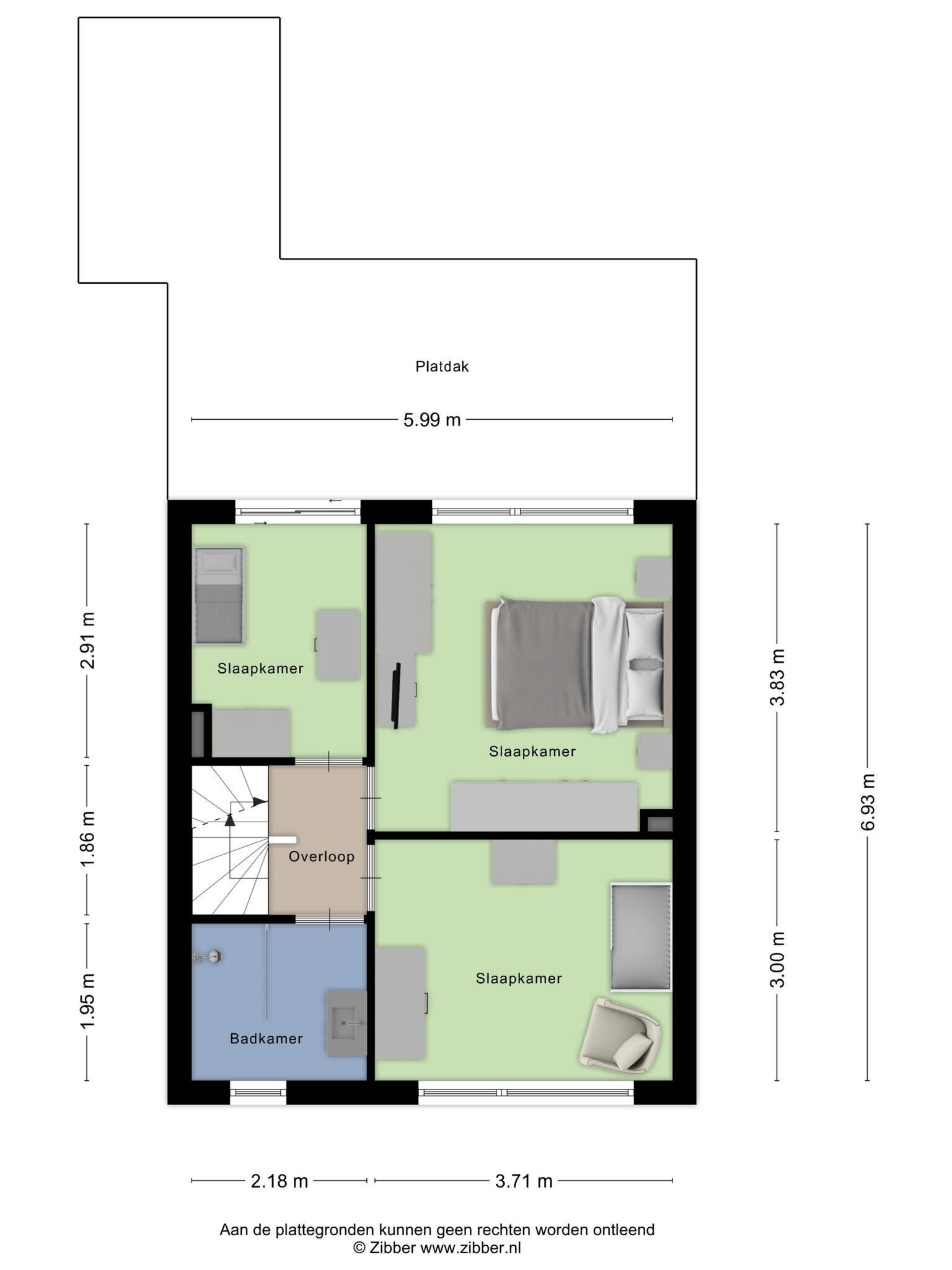
Op de eerste verdieping bevinden zich drie slaapkamers. De master-bedroom is ruim, licht en praktisch ingericht met voldoende plek voor een groot bed en royale kledingkast. De twee andere kamers, nu in gebruik als kinderkamers, zijn eveneens licht en verrassend ruim. De badkamer is fris en netjes met witte en grijze tegels, een inloopdouche en een wastafel met meubel. De zolderverdieping is een heerlijke bonus: een extra slaapkamer én een handige ruimte voor de wasmachine en droger. Dankzij het dakraam is ook hier volop natuurlijk licht. Superfijn!

Tuinieren, Zonnen & Genieten
De tuin is gezellig aangelegd met sierbestrating en mooie bloemen en planten. Er is ruimte genoeg voor een fijne eethoek, een loungebank of een speelplek voor de kinderen. Aan de woning vast zit een berging, ideaal voor fietsen of extra opslag.

Omgeving en Faciliteiten
De woning ligt in een prettige wijk van Roosendaal: rustig, groen en kindvriendelijk. Scholen, supermarkten en sportclubs zijn allemaal dichtbij, net als het openbaar vervoer. Binnen een paar minuten fietsen sta je in het bruisende centrum van Roosendaal of wandel je lekker het groen in. De straat is ruim opgezet en de sfeer in de buurt is vriendelijk en gemoedelijk.

Toelichtingsclausule NEN2580:
De Meetinstructie is gebaseerd op de NEN2580. De Meetinstructie is bedoeld om een meer eenduidige manier van meten toe te passen voor het geven van een indicatie van de gebruiksoppervlakte. De Meetinstructie sluit verschillen in meetuitkomsten niet volledig uit, door bijvoorbeeld interpretatieverschillen, afrondingen of beperkingen bij het uitvoeren van de meting.

Plattegronden

Overdracht

Vraagprijs
€ 325.000 k.k.
Status
Verkocht
Aanvaarding
In overleg

Bouw

Object type
Eengezinswoning, hoekwoning
Soort bouw
Bestaande bouw
Bouwjaar
1958
Soort dak
Zadeldak bedekt met pannen

Oppervlakte en inhoud

Woonoppervlakte
118 m²
Perceeloppervlakte
143 m²
Inhoud
440 m³
Overige inpandige ruimte
6 m²
Externe bergruimte
2 m²

Indeling

Aantal kamers
5 kamers (4 slaapkamers)
Aantal badkamers
1 badkamer
Badkamervoorzieningen
Wastafel, wastafelmeubel, inloopdouche
Aantal woonlagen
3 woonlagen
Voorzieningen
Mechanische ventilatie

Energie

Energielabel
D
Energielabel registratie
20-06-2025
Isolatie
Dakisolatie, muurisolatie, vloerisolatie, hr glas
Verwarming
Cv-ketel
Warm water
Cv-ketel
Cv ketel
Remeha combiketel uit 2004 (eigendom)

Buitenruimte

Tuin
Achtertuin, voortuin

Bergruimte

Schuur / berging
Aangebouwd steen

Garage

Soort garage
Geen garage

Parkeergelegenheid

Soort parkeergelegenheid
Openbaar parkeren

Energieverbruik in Roosendaal

Energielabel deze woning

Energielabel D

Publicatie energielabel: 20-06-2025

Stroomverbruik per jaar

2970 kWh

(Gemiddelde hoekwoning in Roosendaal)

Gasverbruik per jaar

1280 m³

(Gemiddelde hoekwoning in Roosendaal)

* Cijfers zijn afkomstig van het CBS en bedoeld als indicatie en kunnen verschillen voor deze woning

Indicatie hypotheeklasten

Eigen inleg:
Spaargeld / overwaarde

Rente:
Laagste 10-jaars rente

Laagste 10-jaars rente

2,76% - Centraal Beheer Groen... - NHG


2,98% - Centraal Beheer Groen... - 80%

Laagste 20-jaars rente

3,19% - Centraal Beheer Groen... - NHG


3,31% - Centraal Beheer Groen... - 80%

Laagste 30-jaars rente

3,34% - Centraal Beheer Groen... - NHG


3,47% - Centraal Beheer Groen... - 80%


Hypotheek:

Bruto maandlasten: € 0 p/m

Netto maandlasten: € 0 p/m

Hoe berekenen we dit?

Het rentepercentage is gebaseerd op de laagste 10-jaars vaste rente voor één hypotheekdeel. De vermelde rente (2.76% met NHG) is gecontroleerd op 28-07-2025. Deze berekening is gebaseerd op een annuïteitenhypotheek die volledig wordt afgelost, waarbij de maandlasten gedurende de gehele looptijd gelijk blijven. De werkelijke rente en netto maandlasten kunnen variëren, afhankelijk van uw persoonlijke situatie en de hypotheekverstrekker. Raadpleeg een financieel adviseur voor een nauwkeurige berekening en advies. Aan deze berekening kunnen geen rechten worden ontleend; het dient enkel als indicatie.

Documentatie

Zonnegrenzen bekijken

Op de kaart

Inwoners in Roosendaal

Cijfers voor postcodegebied 4702

Totaal aantal inwoners
13185 inwoners
Mannen
50%
Vrouwen
50%

Inwoners in Roosendaal

Cijfers voor postcodegebied 4702

tot 15 jaar
16%
15 tot 25 jaar
12%
25 tot 35 jaar
27%
45 tot 65 jaar
27%
65 en ouder
18%

Huishoudens in Roosendaal

Cijfers voor postcodegebied 4702

Eenpersoons zonder kinderen
41%
Meerpersoons zonder kinderen
26%
Huishoudens zonder kinderen
67%

Huishoudens in Roosendaal

Cijfers voor postcodegebied 4702

Huishoudens met één kind
9%
Huishoudens met meerdere kinderen
24%
Huishoudens met kinderen
33%

Woningen in Roosendaal

Cijfers voor postcodegebied 4702

Woningen voor 1945
29%
Woningen tussen 1945 en 1965
38%
Woningen tussen 1965 en 1975
10%
Woningen tussen 1975 en 1985
5%
Woningen tussen 1985 en 1995
2%

Woningen in Roosendaal

Cijfers voor postcodegebied 4702

Woningen tussen 1995 en 2005
8%
Woningen tussen 2005 en 2015
8%
Woningen na 2015
1%
Huurwoningen
50%
Koopwoningen
50%

Overige in Roosendaal

Cijfers voor postcodegebied 4702

Gemiddelde WOZ waarde
€ 183.000,-
Personen onder de 65 met uitkering
11%

Overige in Roosendaal

Cijfers voor postcodegebied 4702

Adressen per km²
2116
Stedelijkheid (schaal 1 op 5)
80%
Postcode kaart 4702 Gemeente kaart roosendaal

Korte feiten over Roosendaal

Roosendaal (uitspraakⓘ) is een stad in de Nederlandse provincie Noord-Brabant, en de grootste plaats binnen de gelijknamige gemeente Roosendaal.

Indien u vragen heeft of u wilt een bezichtiging inplannen, dan kunt u gebruik maken van het formulier hiernaast. Er zal daarna op korte termijn contact met u worden opgenomen.

Vakidioten met een passie voor vastgoed

Bij C&R Makelaars draait alles om jou en je woning. Wij zijn een frisse, energieke generatie makelaars met een passie voor mensen en de woningmarkt.

We geloven in een persoonlijke aanpak zonder poespas: eerlijk, transparant en altijd met een flinke dosis enthousiasme. Het verkopen van je huis is een belangrijke stap, en daarom begeleiden we je op een manier die bij jou past, van begin tot eind.

Met onze diepgaande kennis van de lokale markt geven we je waardevol advies dat perfect aansluit bij jouw situatie én dat van potentiële kopers.

Daarnaast staat ons creatieve team van vastgoedmarketeers klaar om jouw woning in de schijnwerpers te zetten. Met slimme en doordachte strategieën zorgen we ervoor dat je huis opvalt en het maximale resultaat behaalt.

Jouw tevredenheid is ons einddoel. We zetten alles op alles om je verwachtingen te overtreffen. Nieuwsgierig naar ons team? Klik op de button hieronder en maak kennis met ons!

Vakidioten met een passie voor vastgoed
Reviews C&R Makelaars

Prunuslaan 11, Roosendaal

€ 325.000 k.k. - Verkocht

Helaas, deze woning is verkocht!

Net te laat, deze woning is al verkocht. Laat een zoekopdracht bij ons achter zodat wij u direct kunnen helpen wanneer er nieuw aanbod beschikbaar komt.